TRANSPORTABLE TINY HOME CABINS BUILT IN TE AWAMUTU
Artist’s impression - deck and steps not included in base build
Premium tiny home cabins - Finished for modern living
A home should be defined by the quality of the space, not just its footprint. At Whitechurch Construction, we have developed the Onoke cabin to bridge the gap between temporary accommodation and a permanent architectural home. Whether you are looking for a luxury guest wing, a high-end home office, or a standalone dwelling, this design offers a sophisticated, turn-key solution.
While we build these tiny home cabins in Te Awamutu, each one is engineered from the ground up to be fully transportable across New Zealand. This ensures that the premium craftsmanship you see in our Waikato-built units can be delivered to your site, no matter the location.
View our tiny home cabins at Woodville’s lifestyle blocks
We’re excited to announce our partnership with Woodville as a preferred supplier of our tiny home cabins.
Woodville provides a unique opportunity to secure a spacious, long-term lifestyle licence block in rural Raglan, with stunning views of Mount Karioi. This allows you to own and live in a luxury Whitechurch Construction cabin while enjoying the security of a renewable licence agreement on high-quality rural land.
While our showhome demonstrates the beauty of life at Woodville, it is also available for sale and can be transported to anywhere you choose.
Every Whitechurch Construction cabin remains fully transportable, so whether you settle into the Woodville community or later move your cabin to a site of your own, it’s engineered for the journey.
View the available long-term lease blocks with Woodville here
Visit our Raglan tiny home cabin showhome
Step inside our completed Raglan showhome to experience the Whitechurch Construction standard of finish firsthand. Set on a lifestyle block, it showcases what a fully transportable tiny home cabin can look and feel like in real life, and it’s also available to purchase as a ready-to-go cabin that can be transported to your site.
A viewing lets you see the flow, natural light, and premium materials up close, plus the details that matter day to day, like smart storage and hard-wearing finishes. It’s also the best time to discuss site access, transport, and what the installation would look like on your property.
The Onoke - A Signature Tiny Home Design Built for Flexibility
The Onoke has been meticulously crafted to balance architectural style with functional living. Our signature transportable design is a physical testament to our commitment to quality, featuring high-performance materials and finishes that match any full-scale residential build. While we have refined this specific design to meet the highest standards, we are ready to construct new units for clients looking for a premium, turn-key solution in the Waikato or beyond.
Build Standard: LBP (Licensed Building Practitioner) built
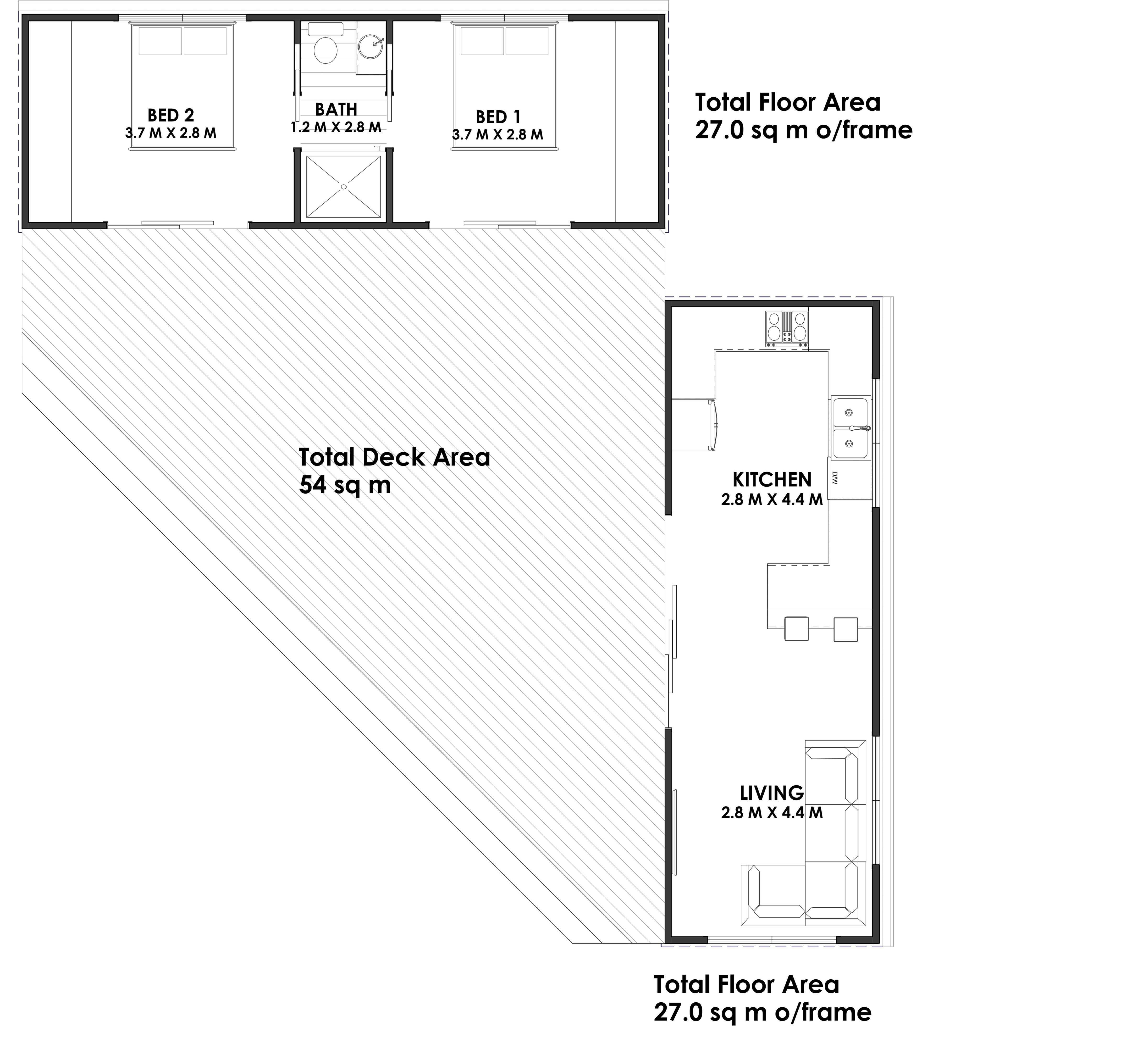
Dimensions: Set of Two 9x3 Tiny Home Cabins (Totalling 54m²)
Technical Specifications & Features:
Engineered for Transit: Built to exceed standard building requirements with specialised framing techniques to ensure structural integrity during delivery.
High-Performance Thermal Envelope: Features high-spec insulation and premium double glazing tailored to withstand the diverse New Zealand climate.
Architectural Finishes: Designed with high ceilings and strategic window placement to maximise natural light and create an expansive interior feel.
Ready-to-Build Convenience: We manage the entire process from our yard to your final site, including guidance on service connections and logistics.
If you're looking to add a dash of extra, to your ordinary build, let's chat
Andy Whitechurch
021 0258 2299
andy@whitechurchconstruction.co.nz
Laura Stamp
021 475 225
laura@whitechurchconstruction.co.nz
Located in Pirongia, Waikato
Hours: Mon - Fri 7am to 5pm
Send a message
Te Awamutu Builders creating spaces that are a little less run-of-the-mill, and a little more one-of-a-kind
108 Patterson Road,
Paterangi, Pirongia 3876
0210 258 2299
















